熱反射真空鍍膜玻璃是建筑用玻璃幕墻及室內裝飾中常用的玻璃,因其隔熱效果好、色澤豪華美觀而受到人們的喜愛。但其在生產制備的過程中,其膜層極易出現色差,影響美觀和使用效果。為了保證其膜層色澤的均勻,就可以使用色差儀。本文介紹了熱反射真空鍍膜玻璃色差產生原因及色差檢測方法。

熱反射真空鍍膜玻璃色差產生原因:
1.膜制備方法不同所產生的色差
目前國內外大多數廠家所鍍制的鍍膜玻璃除了極少數采用凝膠法鍍膜外,絕大多數均采用熱蒸鍍法或磁控濺射鍍法。由于熱蒸鍍法鍍膜所采用的蒸發源為螺旋絲狀鎢舟式,這種源的發射特性及其膜厚在平板玻璃上的分布情況存在差異,為了在平面上獲得均勻的膜厚分布,盡管通過將點源組合成多點組合式,以便在平面玻璃上獲得均勻的膜厚分布,但是也很難解決點蒸發源沉積的膜層厚度產生不均勻的實質問題。這就是目前人們普遍認為采用熱蒸鍍法制備鍍膜玻璃應當被淘汰的主要原因之一。與此相反,由于磁控濺射鍍法所采用的靶源,其膜厚的分布特性與點源相比較,具有膜層均勻的獨特優點,因此已成為目前制備鍍膜玻璃最先進的生產方法被人們所采用,該法所選用的靶型主要有同軸園柱環狀磁控靶,園柱旋轉式雙面矩形磁控靶和平面矩形磁控靶等三種,其中前兩者多用于間歇性生產的箱式鍍膜設備中,后者則用于連續式生產的鍍膜設備中,在這三種靶型中,除了同軸園柱環形磁控靶,由于其放電等離子區里環狀電子受電磁場作用,在環裝等離子區中循環,所以陰極刻蝕區可以明顯看到對應等離子環的不均勻刻蝕.由于這種刻蝕所產生的膜層不均勻性自然會造成帶有條狀的色差帶現象。
2.磁控靶內磁場強度不均所產生的色差
利用正交電磁場增強電子的運動軌跡,借以提高氬離子對陰極的濺射效果是磁控靶優于二極濺射的根本所在。因此在靶體內所設置的諸多條狀磁鐵的布局上,采用磁場強度均相等的磁鐵塊以便保證沿條狀方向磁場強度大小的一致性,從而使靶在矩形的跑道上獲得均勻的刻蝕區,也是確保矩形磁控靶獲得色差小膜層均勻的重要條件。因此,在靶的裝配過程中利用高斯計,選好磁鐵,使所有的條狀磁鐵的磁場強度均相等也是必要的。
3.原片玻璃存放期過長所引起的色差
由于浮法生產線上生產的浮法玻璃,經過一段時間的存放,在表面上易產生發霉現象。由此而引起的玻璃表面涂層的變化問題,也是產生色差的一種原因。因為發霉部分的顏色與不發霉部分的顏色是顯然不同的。為了避免這一現象的發生,采用的原片玻璃最好存放期不超過15天為宜。
色差儀檢測熱反射真空鍍膜玻璃的色差:
1.檢測原理
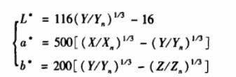
由于人們分辨顏色差別只限于波長為380~780(nm)的可見光范圍,因此可采用色差儀測量鍍膜玻璃的光譜三刺激值X、Y、Z,然后根據CIE推薦的相關色度公式求出明度指數L*及色度指數a*、b*,如下式所示:

由此,再按照下式得出兩個樣品的色差值△E,即:
△E=[(△L*)2+(△a*)2+(△b*)]1/2
式中,X、Y、Z——樣品光譜三刺激值;
Xn、Yn、Zn——標準照明體光譜三刺激值;
△L*——兩個樣品明度指數差值;
△a*、△b*——兩個樣品色度指數差值。
2.檢測方法
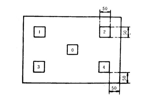
如下圖所示,在鍍膜玻璃的四角和正中間分別取50mm×50mm的樣品5片,試樣外邊緣距玻璃邊緣為50mm。以中間0號樣品為標準片,其余1、2、3、4號樣品均與0號樣品進行色差比較,分別求出四片邊緣樣品的色差值△E的算術平均值,該值即可定為被測鍍膜玻璃的色差值。

鄭重聲明:本文版權歸原作者所有,轉載文章僅為傳播更多信息之目的,如作者信息標記有誤,請第一時間聯系我們修改或刪除,多謝。



